20年瑕疵担保&設備機器の10年保証サービスが出来ました!と中山で平屋プラン作成中!

こんにちは。畠山です。

先日、瑕疵担保保険を依頼している業者さんが来て、

表題のサービスを始めましたという事で、お話を聞きました。

1つは瑕疵担保保険を一般的な10年から20年に延長をするサービスです。

保険の対象部位は通常の10年の時と変わりませんが、

工事に使う部材を20年以上の耐久性のある商品に変えないといけません。

弊社の新築を構成している商品だと、

屋根の下葺材、

コーキングの仕様を耐久性が上がる商品に変える必要がありますが、

最近の注文住宅のお客様は後々のメンテナンスを考えて、

最初から耐久性を上げたいと希望する方が多いので、

20年保証へ変更しても良いのかなぁと思っています。

ちなみに、木製玄関ドア、木製サッシ、木製の外壁材など「雨が直接当たる部分」に木材を使うのは今のところダメなようなのでご注意下さい。


もう一つ紹介をされたのが、こちらです。

設備機器の10年保証サービスです。

通常、設備機器は商品にもよりますが、保証期間は1年~3年程度が多い気がします。

保証期間が過ぎてしまうと、有償で対応という事になってしまいます。

上記は10年保証となりますので、話を聞いていて、良いなぁと思った次第です。

特に良いポイントはこちらです。

20年の瑕疵保険はこれから弊社で建築をするお客様は安心すると思いますが、

保険を使う頻度はほとんどない気がしています。

理由として、弊社は創業してまだ10年ちょっとですが、

大手さんの様に監督がたくさんいるわけでは無いので施工にばらつきが無い、

現時点では雨漏り等で瑕疵担保保険を使った実績は無いなど、

いらないかな・・・と思いつつ、

お客様へ対する安心と言う意味で延長が必要かな・・・と考えています。

それに対し、設備機器10年は使う気がしています。

何よりも、上の表にある、「5つのあんしんポイント」がとても嬉しいサービスです。

これから新築する物件ごとの登録になってしまい、

若干建築コストが上がる可能性がありますが、

それに見合ったサービスなので、検討しても良いかなと思い打合せを終えました。


さて、今日はもう一つ。

現在、弊社で販売中の中山2期ですが、2区画~5区画までの残り4区画となりました。

ちなみに、先日2区画に土地の申込が入ったのですが、

ハウスメーカーさんとの建築予算が合わず、ご契約に至りませんでした。

至らなかったものの、

中山、相原、そして上小山田町と問い合わせはありますので、

もう少しで売れるかな・・・と思ったりしています。


さて、そんなことを考えつつ、

中山3期で考えていた、6区画と7区画ののうち、

7区画を下記の様に、

3区画と4区画の土地に合わせることで、

土地面積が大きくなり、平屋の建築が可能です。

かなり土地が大きくなりますが、現在、下書きまで出来ました。

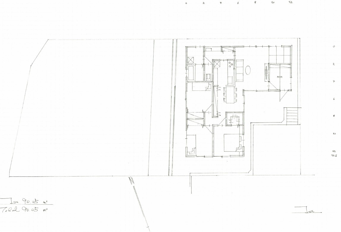
3区画です。

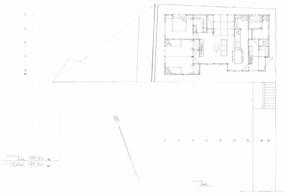
4区画です。

平屋は敷地が広く無いと3LDK、4LDKが入りません。

7区画を分割し、合わせる事で建ぺい率と容積率が増えるので、

出来るプランですね。

現在、こちらのプランの仕上げの作成をお願いしています。

出来上がってきたら、公開したいと思いますので、

お楽しみにしておいて下さい。

それでは、今日はここまでにしたいと思います。

本日もお読み頂きありがとうございました!

***このブログは私が書きました***

畠山 英治

代表取締役社長。

前職ではパワービルダーに勤務。現場監督、営業、支店長を経験。

M&Aをされる事になり、前代表とアイディールを創業。

2級建築士、1級建築施工管理技士補、2級建築施工管理技士、

宅地建物取引士、FP技能士2級、外皮マイスター、

グラスウール充填断熱施工技術マイスターを保有。

趣味はテニス。3児の父。次はバイクの免許に挑戦!?

家造りの事は何でもご相談下さい!

 

コメント

コメントはまだありません。コメントを投稿する最初の1人になって下さい
登録済みですか? ここからログイン
ゲスト
2026年05月28日(木)

By accepting you will be accessing a service provided by a third-party external to https://ideal-fk.co.jp/

Instagram

facebook

X(twitter)

八王子市で30坪台の平屋・二世帯住宅の注文住宅を建てる工務店はアイディール

モデルハウスの予約はこちら
間取りプラン集ダウンロード