こんにちは。畠山です。
早速ですが、26年度のみらいエコの概要が発表されました。
1戸あたりの補助額は減ったようです。
例えば、
「GX志向型」は160万円から110万円へ、
「長期優良住宅」は80万円から75万円へとなりました。
補助額は減りましたが、予算額が増えたそうなので、多くの人が補助金をもらえるように考えたのかもしれませんね。
11/28以降に着工した住宅が対象になるそうですが、詳細はこれから発表のようです。
私たちの会社のある東京都の場合は、
東京ゼロエミと「長期優良住宅」は一緒にもらえるかもしれません。
(25年はもらえました。GXは不可でした。)
そうすると、最大で東京ゼロエミ+長期優良住宅認定+太陽光パネル設置+蓄電池と初期投資は多く必要ですが、
補助金が数百万円と出ますので、
東京都にお住いの方はかなり手厚い補助金が頂けそうです。
太陽光パネルや蓄電池は災害時にも役立ちますから、
これから新築を検討する方が検討をしてみてはいかがでしょうか?
さて、そんな補助金を使って、東京都で「平屋」を建てたいという方向けに、
こちらのプランをご用意しました。
自社分譲の八王子市中山です。
こちらは、前回のブログでご紹介をしています。
価格ですが、早ければ明日公開します・・・と言いながら、本日よりHPにて告知をしています。
遅くなり、申し訳ございません・・・。
価格は上記から確認をして頂きたいのですが、
平屋は土地が広くないとそれなりのプランが入りません。
ここからは、平屋の検討をしている方で土地を探している方の参考になればと思いますので、
よろしくお願いします。
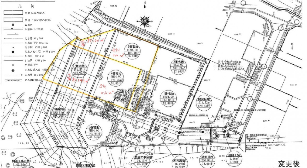
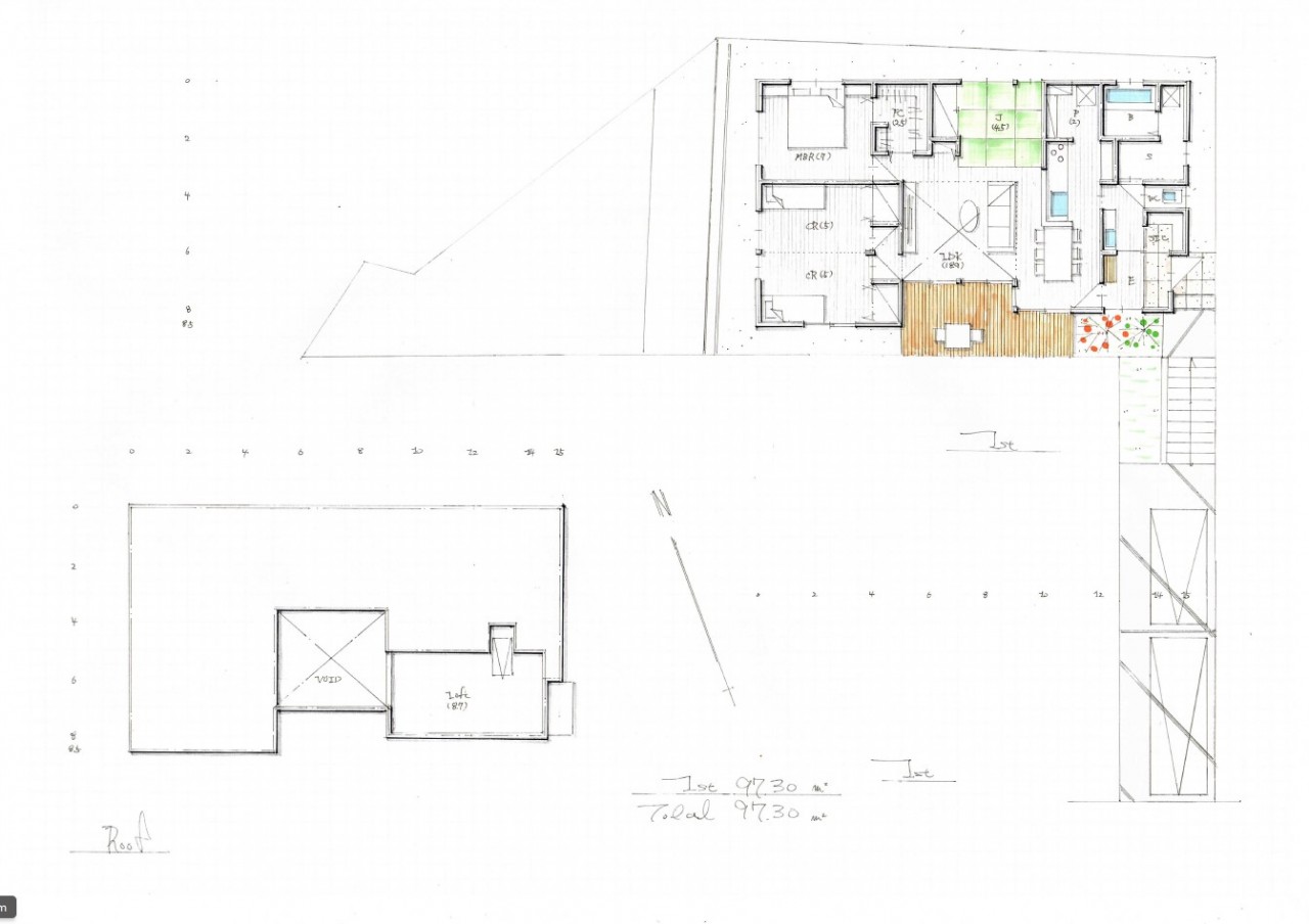
例えば、こちらの3区画は畳部屋も入れて、4LDKとします。
床面積は97.3㎡、約29.37坪あります。
土地情報は下記よりご確認下さい。
敷地面積は185.61㎡、約56坪ありますが、
この地域は第1種低層住居地域と言って、
建ぺい率40%/容積率80%なので、敷地に対して74㎡、約22.4坪までしか建築が出来ません。
土地面積が56坪あっても、
22坪までしか建てる事が出来ないので、上記のプランより7坪、14畳も小さくしないといけない、
という事になってしまいます。
30坪程度の平屋を上記の建ぺい率/容積率の地域に建築する場合は、
約248㎡程度、約75坪程度の敷地が必要になるので、
八王子市とは言え、なかなかそこまで大きい土地となると、「平屋」探すのは困難ではないかと、
仮にあったとしても、土地代がおいくらか・・・という事になってくると思います。
今回は、斜面ではあるものの、7番宅地を分割して、
3番と4番に合筆(土地を増やすイメージです)し、蛍光ペンの部分まで広げるイメージです。
という自社分譲ならではの、区割りを変更し土地面積を増やす事で、平屋の建築が可能になります。
記載の価格には、「外構工事費」や「地盤改良工事費」は含まれていませんが、
7番宅地は斜面という事もあり、総額はお求めやすい価格に設定しています。
平屋の建築にご興味がある方は、お問い合わせを頂ければと思います。
それでは、今日はここまでにしたいと思います。
本日もお読み頂きありがとうございました!
***このブログは私が書きました***
畠山 英治
代表取締役社長。
前職ではパワービルダーに勤務。現場監督、営業、支店長を経験。
M&Aをされる事になり、前代表とアイディールを創業。
2級建築士、1級建築施工管理技士補、2級建築施工管理技士、
宅地建物取引士、FP技能士2級、外皮マイスター、
グラスウール充填断熱施工技術マイスターを保有。
趣味はテニス。3児の父。次はバイクの免許に挑戦!?
家造りの事は何でもご相談下さい!
By accepting you will be accessing a service provided by a third-party external to https://ideal-fk.co.jp/

