相模原市緑区相原5丁目9区画①~断熱等級7を作ってみました~

こんにちは。畠山です。

皆さん、毎日、暑い日が続きますが、体調は大丈夫でしょうか?

こんなに暑いと5年、10年先の気温はどうなってしまうのだろう??と思ってしまいます。

外のスポーツや仕事は夏に出来なくなるとか、

技術が進歩して今は送風機が付いた空調服が冷房付きになったりとか、

サマータイム導入で長期間の夏休みが出来たりとか・・・・それは無いか・・・、

と、何かしら世の中が変わるのかな?とか・・・考えてしまいます。

そんな、暑い夏を地球沸騰化と表現している何かの記事を見かけましたが、

それを見越してか、

日本の家の性能が悪すぎるからなのか、

4月からは新築で義務化になった断熱等級4(東京の6地域だとUa値0.87以下)ですが、

まだまだその断熱基準は低いと感じます。

じゃあいくつが良いの???と思いますが、

弊社は標準で「断熱等級6」となっており、

お引き渡しをしたお客様のお話を聞くと、

「快適」という話を聞いており、この位は建物に必要な性能だと思います。

光熱費のデータも頂いており、私たちもとても参考になっています。


販売中の町田市上小山田町の現場でもその性能を体感出来ますので、

家造りの参考にしたい方、

何をどうしたら良いか迷われてる方は見学にいらして下さい。

見学をした方からは、

この時期のこの気温でリビングのエアコン1台でここまで涼しくなるのか・・・と、

好評化を頂いており、

今後の家造りの参考にして頂けるのかな、と感じております。

こちらの物件は販売もしていますので、

購入を希望する方もお問い合わせを頂ければと思います。


さて、まだ弊社では「断熱等級7」の家を造った事が無く、

数値で言うと2年程前にお引き渡しをした住宅の「Ua値0.29」が一番良い数値でした。

建物価格も高くなる事から、そこまでしなくても良いかな・・・と思っていましたが、

今後さらなる地球沸騰化、住宅の高断熱化などが予想されますから、

費用対効果を調べようと思い、

相模原市緑区相原9号棟をベースに試算をしました。

参考までに以前のブログで少しふれています。

(下の方です。)

...

色々とやらないと・・・ - EasyBlog

こんにちは。畠山です。 先週の金曜日、FP2級の試験が終わりました。 2月にブログで挑戦を宣言して、 1級建築施工管理技士から始まり、 普段の仕事とは関係ない事も学びながら、 終わった感想としては、本当に難しかったです。 眠気、記憶力、雑念と闘いながら、試験の直前は何時間勉強したことか・・・。 参考までに勉強をする皆さんへお勧めのグッズはこちらです。 グミは集中力を高め、ブラックガムは眠気を吹き飛ばします。 試験に取り組んだこの2年の間に、大変お世話になりました。 これから勉強に取り組む方は是非

ちょっと、時間が無くて雑な感じで紹介してしまいましたが、

ちょっと仕切り直してお伝えすると、

この物件は建築確認を取得して販売する予定となっております。


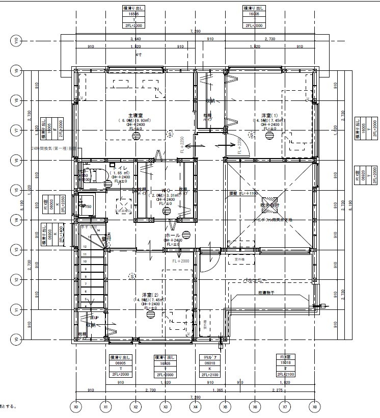
施工図面も出来てきおり、建物の間取りはこんな感じです。

  外観はこちらです。

今回は、試しにCGを作成してみました。

CGは実際に建築をした場合で、

実物に近い形で作成しており、

実際に使う外装や内装、外構工事を伝えて、作ってもらっています。

内部は近いうち、弊社HPで公開しようと思います。

(もちろん、車はついてません!)


さて、色々と断熱計算をして、目標である断熱等級7,Ua値は0.26となっています。

「断熱等級7」になっているものの、基準ぎりぎりとなっていますので、

もう少し余裕をみるか、それともこのままにするか、

どうしようかと考えているところです。

そして、

この性能で建築をした場合のコストをお伝えしようと思いましたが、

建築確認を取得しないと、公表出来ないので、

こちらはもうしばらくお待ちください。


ちなみに、当初はUa値0.23でした。

造ってみたい気持ちはあるのですが、

コストが上がるし、ここまでしなくて良いかな・・・と思いつつ、

あれこれ考えてみようと思います。

さて、分譲住宅としては公開出来ませんが、

注文住宅でどの位の仕様や費用になるか、

と言うのはお伝え出来ます。

気になる方はお問い合わせを頂ければと思います。


という事で、本日はここまでにしたいと思います。

暑い日がまだまだ続きますが、しっかり睡眠と食事をとって、

体を休めながら、乗り切りましょう!

お読み頂きありがとうございました!

 

コメント

コメントはまだありません。コメントを投稿する最初の1人になって下さい
登録済みですか? ここからログイン
ゲスト
2026年05月27日(水)

By accepting you will be accessing a service provided by a third-party external to https://ideal-fk.co.jp/

Instagram

facebook

X(twitter)

八王子市で30坪台の平屋・二世帯住宅の注文住宅を建てる工務店はアイディール

モデルハウスの予約はこちら
間取りプラン集ダウンロード